Preisklasse: von €200 bis €2.500.000
Quadratmeter: von 10 m2 bis 1.000 m2
Andere Eigenschaften
Preisklasse: von €200 bis €2.500.000
Quadratmeter: von 10 m2 bis 1.000 m2
Andere Eigenschaften
  • 1 year ago
  • 386 views

Doppelhaushälften zur Miete – Modernes Wohnen in Rohrsen

€1.200

Beschreibung

Zur Vermietung stehen zwei moderne Doppelhaushälften, die durch eine hochwertige Bauweise, eine durchdachte Raumaufteilung und energieeffiziente Technik überzeugen. Jede Wohneinheit erstreckt sich über zwei Etagen und bietet eine Wohnfläche von ca. 135 m². Die lichtdurchfluteten Räume, die offene Gestaltung und die ruhige Lage machen diese Immobilien ideal für Familien, Paare oder Berufstätige.

AUSSTATTUNG UND HIGHLIGHTS

  • Wohnfläche: jeweils ca. 135 m²
  • Zimmer: 4 pro Wohneinheit (inkl. Arbeitszimmer)
  • Badezimmer: 1 Tageslichtbad mit Dusche und Badewanne + separates Gäste-WC
  • Küche: Offene Wohnküche mit direktem Zugang zum Wohn-/Essbereich
  • Außenbereich: Terrasse im Erdgeschoss + Balkon im Obergeschoss
  • Fenster: 3-fach verglaste Fenster für optimale Wärmedämmung
  • Heizung: Wärmepumpe für effizientes Heizen
  • Fußbodenheizung: In allen Wohnräumen für maximalen Komfort
  • Parkmöglichkeiten: 2 PKW-Stellplätze pro Haushälfte
  • Fahrradstellplätze: Separater Bereich für Fahrräder

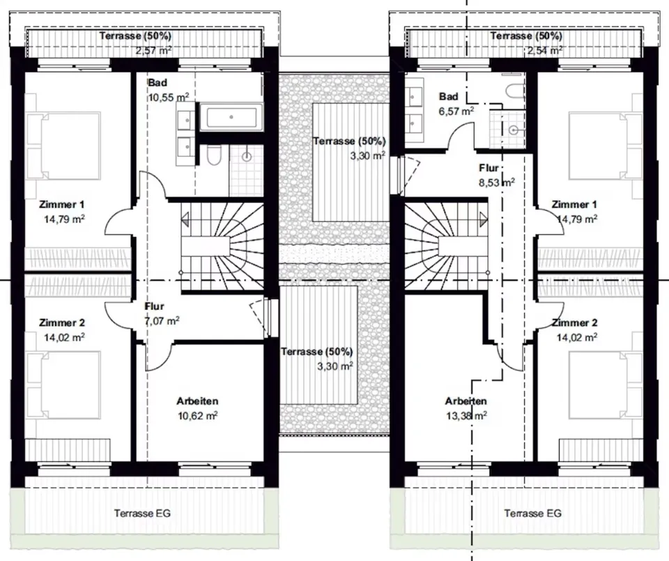
RAUMAUFTEILUNG

ERDGESCHOSS:

  • Eingangsbereich mit großzügigem Flur
  • Heller Wohn- und Essbereich mit Zugang zur Terrasse
  • Offene Küche mit modernem Design
  • Gäste-WC mit hochwertigen Sanitäreinrichtungen
  • Hauswirtschafts-/Abstellraum
  • Technikraum

OBERGESCHOSS:

  • Hauptschlafzimmer mit viel Tageslicht
  • Zweites Schlafzimmer, ideal als Kinder- oder Gästezimmer
  • Separates Arbeits-/Gästezimmer
  • Modernes Tageslichtbad mit Dusche, Badewanne, Waschbecken und WC
  • Zwei Balkone mit schönem Ausblick

LAGE

Die Doppelhaushälften befinden sich in einer ruhigen Wohngegend in Rohrsen, nur wenige Minuten von Nienburg entfernt. Einkaufsmöglichkeiten, Schulen, Kindergärten sowie Ärzte und Apotheken sind in unmittelbarer Nähe. Durch die gute Verkehrsanbindung sind auch größere Städte schnell erreichbar.

Übersicht

  • ID 12712
  • Badezimmer 2
  • Garagen 1
  • Wohnfläche 135 m2
  • Baujahr 2024
  • Address 31627 Niedersachsen - Rohrsen
  • Country Germany
  • Postal code/ZIP 31627

Details

  • Objekt ID 12712
  • Preis €1.200
  • Objekt Typ
  • Objekt Status
  • Zimmer 4
  • Badezimmer 2
  • Baujahr 2024
  • Wohnfläche 135 m2
  • Garagen 1
  • Verfügbar ab März 2025
  • Haustyp Reihenhaus
  • Nebenkosten 150 €
  • Heizkosten 150 €
  • Warmmiete 1.500 €
  • Kaution 3.600 €

Mortgage Calculator

Nearby Places

ACCESS_LIMIT_REACHED: You've reached the access limit for this client. See instructions for requesting a higher access limit at https://docs.developer.yelp.com/docs/fusion-rate-limiting
ACCESS_LIMIT_REACHED: You've reached the access limit for this client. See instructions for requesting a higher access limit at https://docs.developer.yelp.com/docs/fusion-rate-limiting
ACCESS_LIMIT_REACHED: You've reached the access limit for this client. See instructions for requesting a higher access limit at https://docs.developer.yelp.com/docs/fusion-rate-limiting

Rating & Reviews

Avarage User Rating

0/ 5

Rating Breakdown

  • 0%
  • 0%
  • 0%
  • 0%
  • 0%

Write A Review

Compare